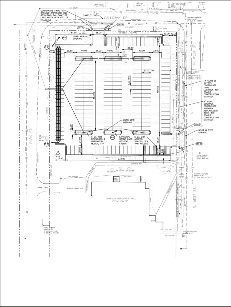
Students and faculty will have more than 250 new places to park this semester as construction on a new paved parking lot next to Simpson Residence will begin within the next two weeks. The start date — contingent on city planning and construction — is not finalized, although the parking lot must be completed by November.
“The rough timeline is to start construction in two weeks,” Chief Administration Officer of Hillsdale College Rich Péwé said. “We are expanding the whole lot, and we’ll probably end up with about 270 — close to 300 — spots.”
The lot will stretch from the north side of Simpson to Galloway Street. While the spaces will be reserved primarily for faculty during school hours, Péwé said students will have access to the parking spaces during special events Hillsdale College President Larry Arnn hopes to host in the Searle Center during the year. The college couldn’t provide the exact number of parking spaces available on campus at this time.
“We’re hoping the expansion of Searle will heighten student morale,” Péwé said. “Dr. Arnn wants to have a large Christmas dinner for the whole student body there, and we will also hold the President’s Ball in there.”
While the city planning commission approved the parking lot design, Péwé said details may change during construction, which may push back the completion date.
“There are a lot of things tied into a final date, city approvals are part of that,” Péwé said. “We have to extend the water drainage, and curb cutting details and water storage are all part of it. We just have to work out a couple details.”
City of Hillsdale Zoning Administrator Alan Beeker played an important role in approving the parking lot design, and said the city needed to make several changes to the initial design to begin construction.
“It was planned and designed by the college’s engineer, Matt Taylor, and then the planning commission met with him to go over the project. The city asked Taylor to change a couple things to comply with certain ordinances,” Beeker said. “Taylor made the modifications, and the city passed it.”
Beeker said it is crucial the builders finish the parking lot before winter, or else they will not have access to necessary structural materials.
“They want to have it started soon,” Beeker said. “Definitely within the month, before all the asphalt suppliers close in November. Then it will be a while before it is completed.”
All college construction must meet city and state guidelines and receive approval from the city planning commission and zoning administration.
Jonathan Smith, a member of the Hillsdale city planning commission and alumnus, said the city wants to support the students and accommodate additions to campus.
“The planning commission is doing this in line with the college’s expansion, especially the new renovations of Simpson Residence and the Searle Center,” Smith said. “The college does everything very well, and the commission wants to support them. To add the parking lot to accommodate the college was really a no-brainer.”
![]()

